0
Skip to Content
architecture
services
projects
design tools
service request form
digital twins
overview
fees + scheduling
about
team
contact
Open Menu
Close Menu
architecture
services
projects
design tools
service request form
digital twins
overview
fees + scheduling
about
team
contact
Open Menu
Close Menu
Folder:
architecture
Back
services
projects
design tools
service request form
Folder:
digital twins
Back
overview
fees + scheduling
Folder:
about
Back
team
contact
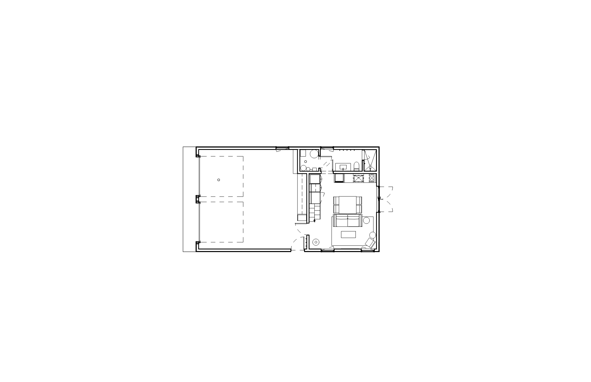
Garage Dwelling
Optimized for simple living & adventure
Previous
Previous
Oliver Residence
Next
Next
Lake Residence